Period 8 House (2022-2025)
New Single Family Residence, Cottontown TN
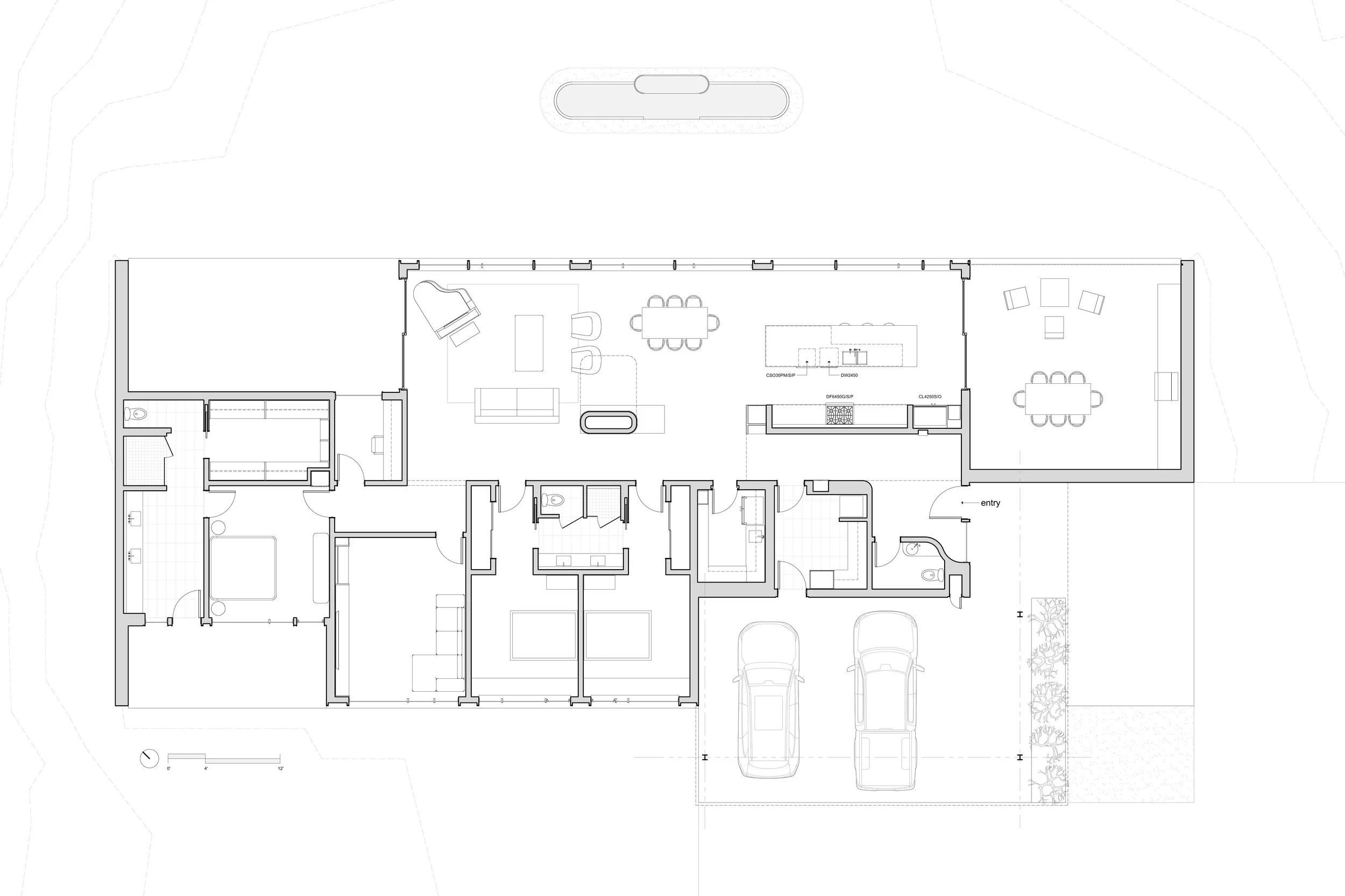
A family with two children who ride horses and raise chickens, requested a glass house overlooking a pastoral landscape. One partner requested a home rooted to its site, with long, uninterrupted views of the land and the native wildlife. The other asked that the design integrate key principles of Feng Shui, beginning with the home’s orientation and extending to the layout of essential rooms. Both desired interiors that remained visually and spatially connected to the outdoors through generous glazing. Our primary goal was to create a modern home that felt like an extension of the site, open to views and daylight, while utilizing the orientation and layout as defined by the Kua Number Calculator. We wanted the interior to quietly glow throughout the day, with shifting light and shadows that changed season by season, reinforcing a circadian sense of calm. A second goal was to blur distinctions between the rooms; living room, dining room, kitchen, and hallway. We wanted the entire home, especially the kitchen, to feel like a continuous field of overlapping activities, extending to the exterior. Our biggest challenge was our limited initial understanding of Feng Shui—specifically the Kua 1–9 number system and the Geomantic Chart. Using the family’s birth dates and projected move-in date (which would be during the Period 8 cycle), we established the orientation of the primary façade, known as the “Facing Palace,” where the home’s energy originates. We generated the Kua numbers and applied them to a nine-square grid over a generic floor plan to determine the auspicious and inauspicious zones of the house. The layout, anchored by four covered, corner porches, was generated using this overlay. The main entry, the bedrooms, and especially the kitchen—had to be correctly placed before the rest of the plan could be developed. Ensuring that the kitchen occupied the most favorable portion of the house while still aligning with views and circulation took several design iterations. It was a process of balancing Feng Shui directives with client, site and architectural intent. Through the process we noted how primary tenants of Feng Shui correlated well with passive energy strategies of orientation and natural ventilation. Curving surfaces were deployed to soften and stretch light providing calm fluid surfaces for energy to flow through the house. This project was ultimately a search for simplicity. Nearly every design decision, from appliance selection to windows and trim, grew from the clients’ desire for clarity. Its simplicity stems from the careful coordination between cultural principles, site conditions, and the practical realities of living. The home transitioned this year from a Period 8 House to a Period 9 house modifying the interior’s energy for the next 20 years. Features such as a fountain facing the North East are being added to address these shifts into a new Period. We took away from this that Feng Shui is not a static strategy but rather, one that changes and adjusts with time just as homes naturally do.
HOUSE Credits
Architecture: Principal Architect, Michael Goorevich with Project Architect, Jack Mcaters
General Contractor: Craig Huseby of Huseby Homes with Project Manager, George Bullock
Structural Engineer: Ruth Alwes
Millwork: Just Plane Wood, Roger Gramm
Photography: Anthony Matula and Kate Dearman
